10 000 000 Р 123 200 $ или 106 300

Информация о коттедже

184 м2
Площадь
2
Этажность
11 cоток
Участок

Дополнительная информация

Дом продаётся вместе с участком
есть
Развернуть
Агент
+7 (982) 730-51-12
Начать чат с агентом

Дом в Косулино, коттеджный посёлок Пересвет, Центральная улица, 24 ...

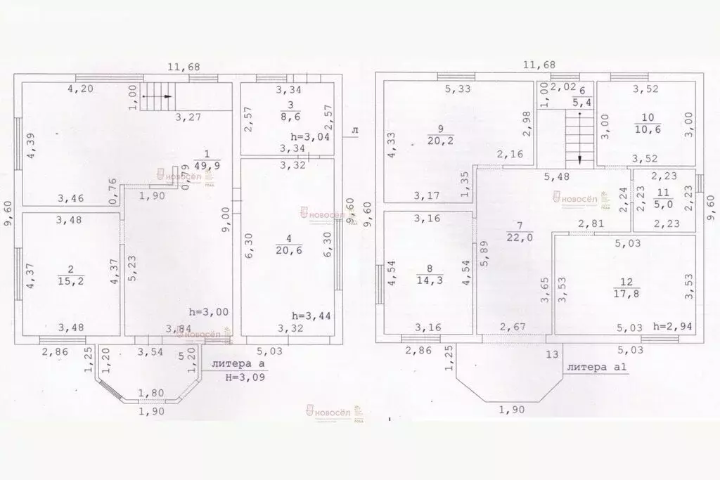
Объект № 194703. Продается 2-этажный коттедж 2021 года постройки. Площадь 184,1 кв.м. и дом-баня 2014 года постройки площадью 50,1 кв.м. На участке скважина, септик, теплица, забор. Газ на границе участка.В доме-бане выполнен ремонт, есть отопление (электрокотел), подходит для круглогодичного проживания.В коттедже отделка черновая. Фундамент ленточный на сваях. Материал стен - твин-блок 300мм, перегородки - кирпич, межэтажное перекрытие - бетон 150мм, арматура, крыша - мягкая черепица, окна Rehau.Материалы для отделки закуплены. При необходимости посоветуем ремонтную бригаду. Первый этаж: кухня, гостиная, санузел, гараж. Второй этаж: 3 спальни, кабинет, санузел, холл с балконом.Два совершеннолетних собственника. Обременений нет. ***Гарантийный сертификат «Защита собственности по данному объекту в подарок***

Читать полностью

    Для того, чтобы купить 2-этажный коттедж по адресу: Косулино, Центральная улица, 24, позвоните по телефону +7 (982) 730-51-12. Торопитесь! Объявление №50016452704 о продаже двухэтажного коттеджа опубликовано 08 октября 2025.

    Позвонить Написать
    10 000 000 Р123 200 $ или 106 300
    Агент
    +7 (982) 730-51-12
    Начать чат с агентом
    Похожие предложения
    Дом в Свердловская область, Белоярский муниципальный округ, с. ... - Фото 1
    Дом в Свердловская область, Белоярский муниципальный округ, с. ... - Фото 2
    1 этаж, общая площадь 140м², участок 7 соток

    Основные характеристики:-Готовность 60 ;-Построин из высококачественных материалов ;-Назначение з/у: ИЖС;-Отделка: под ключ, ценаИнфраструктура :-Просторная терраса ;- Ровный участок; Коммуникации:-Собственная скважина;-Электричество 15 кВт 380;-Установлен...
    • 1 эт.
    • 140 м²
    • 7 сот.
    11 000 000 Р
    Агент
    +7 (912) Показать номер
    Посмотреть контакты
    Коттедж в Свердловская область, Белоярский муниципальный округ, с. ... - Фото 1
    Коттедж в Свердловская область, Белоярский муниципальный округ, с. ... - Фото 2
    1 этаж, общая площадь 113м², участок 7 соток

    В продаже современный коттедж площадью 113,7 м2 с приусадебным участком 7,8 сот в коттеджном поселке Чистые Росы 2 Косулино . Дом из газоблока. Крыша покрыта мягкой кровлей. В доме большая кухня гостинная 24,5 м2 и 3 больших спальни по 14м2. Канализация...
    • 1 эт.
    • 113 м²
    • 7 сот.
    9 500 000 Р
    Агент
    +7 (912) Показать номер
    Посмотреть контакты
    Дом в Свердловская область, Верхнее Дуброво пгт пер. Белый, 13 (177 м) - Фото 1
    Дом в Свердловская область, Верхнее Дуброво пгт пер. Белый, 13 (177 м) - Фото 2
    2 этажа, общая площадь 177м², участок 8 соток

    Вашему вниманию двухэтажный дом 177 м2 в поселке городского типа Верхнее Дуброво.Рассмотрим обмен с вашей доплатой на 2-х комнатную квартиру либо дом 100 м2.Дом: построен в 2019 году. Оцилиндрованное бревно. 1 этаж: кухня-гостинная, гостевая комната,...
    • 2 эт.
    • 177 м²
    • 8 сот.
    10 290 000 Р
    Агент
    +7 (912) Показать номер
    Посмотреть контакты
    Коттедж в Свердловская область, Белоярский муниципальный округ, пос. ... - Фото 1
    Коттедж в Свердловская область, Белоярский муниципальный округ, пос. ... - Фото 2
    2 этажа, общая площадь 158м², участок 8 соток

    Арт.. Вашему вниманию предлагается 2-x этажный дом с земeльным участкoм.Площадь домa cocтaвляет 158 квадрaтных мeтpов, a учaсток занимает 8 cоток.Нa первом этаже рacположeнa просторнaя кухня-гocтиная, прачечная, гардеробная и санузел.На втором этаже расположено...
    • 2 эт.
    • 158 м²
    • 8 сот.
    10 850 000 Р
    Агент
    +7 (982) Показать номер
    Посмотреть контакты
    Дом в Свердловская область, Белоярский муниципальный округ, пос. ... - Фото 1
    Дом в Свердловская область, Белоярский муниципальный округ, пос. ... - Фото 2
    1 этаж, общая площадь 134м², участок 6 соток

    Объект 350. Продается современный дом 134,8 м с ремонтом под ключ в КП Радость Просторный и уютный, этот дом идеально подойдет для комфортной жизни.В доме: Просторная кухня-гостиная идеальное место для семейных вечеров Три светлые спальни для комфортного...
    • 1 эт.
    • 134 м²
    • 6 сот.
    10 900 000 Р
    Агент
    +7 (982) Показать номер
    Посмотреть контакты

    Не нашли подходящего объявления?

    Оставьте заявку, и наши риэлторы подберут купить дом в районе Косулино

    (0)